
Concept Collage



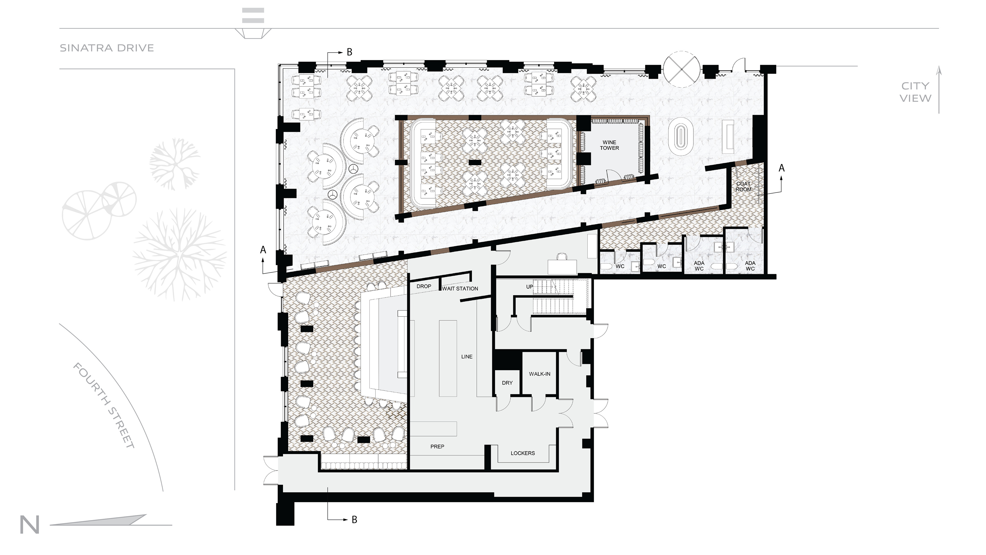
First Floor Plan

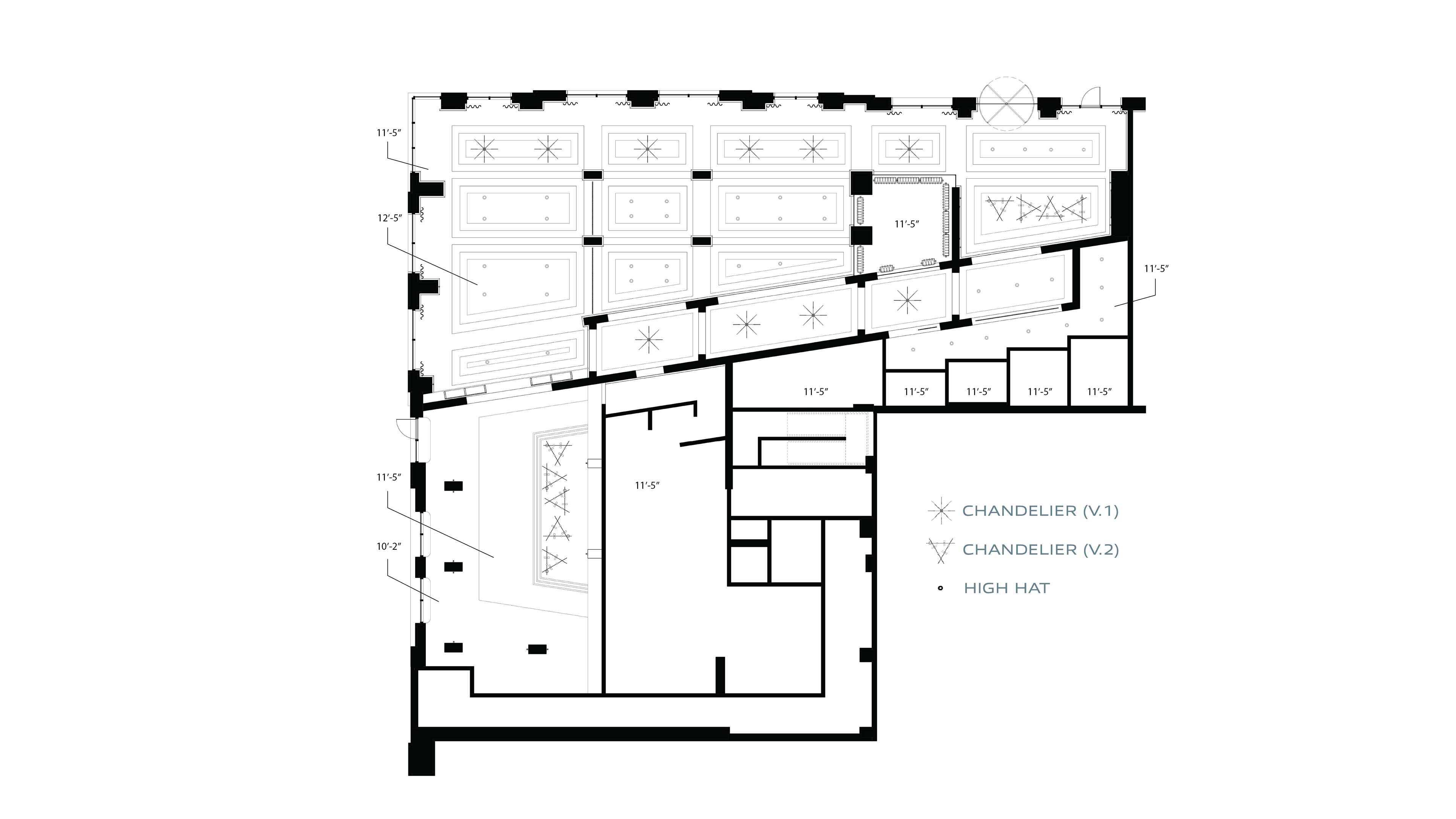
First Floor Reflected Ceiling Plan













Standing tall in New York Harbor since 1885, the Statue of Liberty has always been a beacon of light, emanating feelings of hope and exhibiting a strong sense of grandeur. The iconic statue welcomes all who enter the harbor, serving as an ambassador of the United States of America and a symbol of liberty and freedom. There is a specific feeling when seeing the statue, whether from the water or from the waterfronts of New York or New Jersey, that touches almost everyone who is in the presence of Lady Liberty. Located at an intersection of a diverse people and place, the statue remains visible, powerful, and grand. A new restaurant on Hoboken’s waterfront hopes to embody that same feeling. It will offer a modern take on traditional French cuisine, meant to symbolize the long standing relationship between the United States and France, who gifted us the statue many years ago Programming: 60-Seat Dining Room, 12-Seat Bar, 15-Seat Lounge Skills: Revit, AutoCAD, Adobe Photoshop, Adobe Illustrator
Concept Collage
First Floor Plan
First Floor Reflected Ceiling Plan